Descripción del modelo
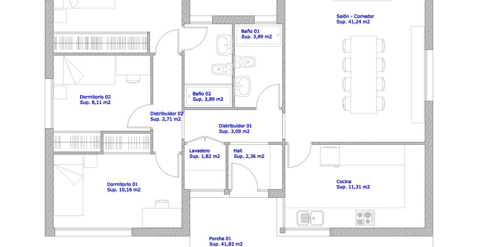
El modelo ATR-186 cuenta con una superficie total de 185,75 m2 que se distribuye en una única planta que incluye un porche delantero que sirve como aparcamiento exterior cubierto, hall, salón-comedor, cocina independiente, lavadero, dos baños, tres dormitorios con armario empotrado, uno de ellos con baño de uso particular, cuarto de instalaciones y porche trasero.
El ATR-186/H es la versión de construcción con paneles prefabricados de hormigón armado ejecutada conforme a la memoria de calidades tipo. Como todos nuestros modelos, este diseño es totalmente personalizable por lo que puede ajustarse a las necesidades del cliente y a las condiciones urbanísticas de aplicación.
Detalles
Sistema de construcción
Hormigón Prefabricado
Dormitorios
3
Superficie (m2)
Plantas
1
185,75 m2
Baños / Aseos
Porches / Terrazas
2
Si
Garaje
Tipo de cubierta
Plana
No


