Descripción del modelo
El diseño de la vivienda ATR-171 es compacto, lo que contribuye a optimizar su distribución. La vivienda suma 170,66 m2 y se compone de dos plantas, quedando en la planta baja el porche de acceso, un hall, aseo, un salón-comedor, una cocina independiente, un garaje y un trastero.
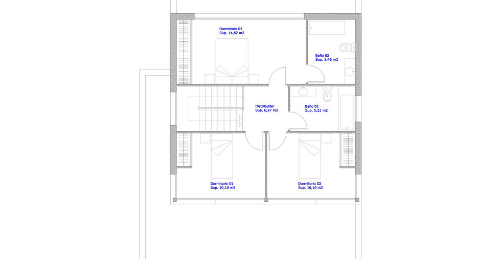
La planta superior consta de dos baños y tres dormitorios con armario empotrado y uno de ellos con baño incorporado.
El ATR-171/O es la versión de construcción tradicional ejecutada conforme a la memoria de calidades tipo. Como todos nuestros modelos, este diseño es totalmente personalizable por lo que puede ajustarse a las necesidades del cliente y a las condiciones urbanísticas de aplicación.
Detalles
Sistema de construcción
Obra Tradicional
Dormitorios
3
Superficie (m2)
Plantas
3
170,66 m2
Baños / Aseos
Porches / Terrazas
3
Si
Garaje
Tipo de cubierta
Plana
Si



